大江戸温泉物語 Premium 斉木別館のクチコミ(51件)
一覧を見る価格以上の宿で満足満足!
4.0 旅行時期:2015/11(約10年前)
当初、舞鶴旅行を予定していましたが、急遽訳あって鳥取旅行に変更。
今回はふるさと旅行券(10000円クーポン)を使っての宿予約でした。
ここ、斉木別館は以前から気になっていましたが、人気があるため週末の予約は数ヶ月先まで満室。
他の宿を予約していましたが、旅行予定日1週間前になって空室1が出たため急いで予約しました。
今回のプランは【期間限定】秋の特選グルメ~特選和牛付~プラン
宿は三朝温泉街から少し離れていますが徒歩圏内。
宿に到着するとエントランス(寄り付)まで従業員の方のお出迎え&フロントへの案内。
荷物をフロントまで運んで頂きました。
車は、宿の前にある駐車場に移動するため、従業員の方が駐車してくれます。
フロントに到着するとエントランスロビーでのウェルカムティーと宿の説明。
庭園を眺めながらのウェルカムティーは最高ですね。
しばらくしてから、仲居さんによる部屋への案内。
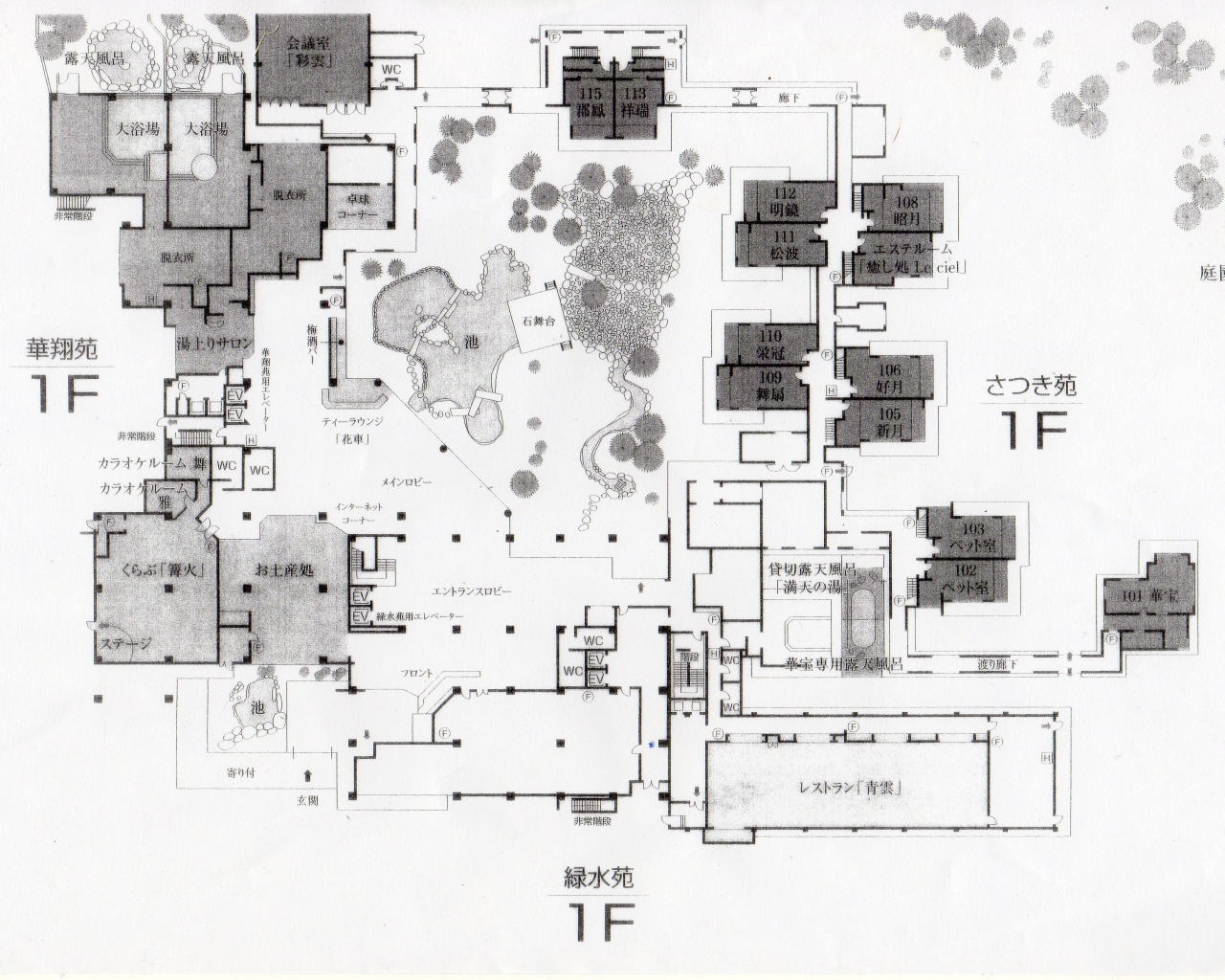
お部屋は さつき苑 1階の106号室 好月
2階建てになっていて、2階にも206号室のお部屋があります。
中庭に面した部屋と面してない部屋がありますが、中庭に面していない部屋では裏庭がちゃんと見れます。
部屋の中はリフォームされていてキレイですが、かなり古い木造住宅です。
普通に畳の上を歩いてもグサグサと揺れる感じがするし、普通に「よっこいしょ」と腰を下ろせばグラグラっと揺れます。
障子戸もスムースではないため、力を入れて開けると思わぬ勢いで開いて「パタン」と音がしてしまうことも。トイレ前と金庫前に座抜け部分がありました。なんか、おもわず実家を思い出してしまいました。
神経質な人、他のお部屋の人に気遣いが出来ない人は、鉄筋造りの緑水苑を選択したほうが良いと思います。
また、エントランスロビーから【さつき苑】までは回廊(屋内)になっていて、さつき苑106号室から大浴場まで歩数で時計回り130歩、反時計回りで160歩。エントランスからは100歩程度。エアコンは効いていませんが、冬季は石油ファンヒーターが数メートルおきに置いています。一見、肌寒く感じるかもしれませんが、湯上りの汗を引かすのには丁度よい感じでした。
到着後、30分ほどして貸切風呂があることを思い出し、フロントへ予約。
すでに空き時間は18時~とラストの23時~。
23時~予約しました。(45分¥2700)
夕方の食事は、大広間(テーブル&椅子)での食事で、今回は【おまかせ会席&和牛鉄板焼】のプラン。
季節の食材を使った懐石で品数も味もばっちり。和牛は最後に火を入れてもらいましたが、和牛は無くてもよいくらいおなかいっぱいになりました。
特に食前酒のゆず酒。お酒は宴会くらいでしか飲まない私ですが、凄く美味しくて、売店での販売か梅酒バーで【本日の食前酒】という形で置いて欲しいです。
お風呂は内湯と露天風呂があり、朝・夕で男性用女性用の入れ替えです。
どちらも宿泊者数に対して大きめですので、どの時間帯も混雑することはありませんでした。どちらの風呂も湯船からのオーバーフローではなく、底からポンプで吸い上げるタイプの排水でした。源泉掛け流し&一部循環式併用で、少し残念でした。やはり、温泉宿の風呂は一部循環式でも上面からのオーバーフローが魅力ですから・・・。
バスタオル・タオルは使い回しなので、2回目以降の入浴は濡れたタオルを使用。
脱衣場に新しいタオルを置いて欲しいです。
一方、貸切露天風呂は小庭の中に岩風呂があり、こちらは上面から排水溝へしっかりとお湯が流れ雰囲気もよく、絶対に借りるべきです。あらかじめ、借りる予定の場合は、予約時に時間指定しておいた方が無難ですよ。
朝食は和洋、品数も豊富。サラダからデザートまで極々一般的な朝食ですが・・・。
朝風呂は5時から可能で、男女入れ替えです。冬季、雪を見ながらの朝風呂、最高でしょうね。
朝の出発はフロントからエントランス(寄り付)まで従業員の方が荷物を運んでくれ、車は駐車場からエントランス(寄り付)まで回してくれてお見送りしてくれます。
週末¥10800のプランであまり期待していませんでしたが、良い意味で期待を裏切られた(笑)い~いお宿でした。
また鳥取に行く際には利用したいお宿です。
※最後に、部屋に座抜けがあったこと、大浴場が湯船の上からの掛け流しではなかったこと、脱衣場に新しいタオルがないこと、以上の3点がマイナス点として★★★★とします。
クチコミ投稿日:2015/11/19
いいね:0票
※利用規約に違反している投稿は、報告する事ができます。 問題のある投稿を連絡する
大江戸温泉物語 Premium 斉木別館のクチコミ一覧(51)
shu6555さんが投稿したクチコミ
shu6555さんが泊まったホテル
-
雲仙地獄の近辺で、比較的お手頃価格の宿。駐車場はホテル西側の雲仙気象観測所の横にあります。チェックインは15時〜。最初に玄関前に車をつけると、中居... もっと見る
-
初めての利用で、システムがわかりにくかったので、詳しく書きます。[駐車場]何箇所かあります。一番近くは宿の裏に1つ、東側の通路を北に行った信号機のある交差点の南... もっと見る
shu6555さんが行った観光スポット
-
受付は、オレンジベイホテル北東かどの入口にあります。50分¥3000受付で鍵を受取り入口へ。オートロックになっており、階段を下りると右「海」左が「空」今回は右の... もっと見る
-
2024.10平日九州旅行で立ち寄り。貸切風呂の受付はこの建物でします。桜門から見て正面が新湯館(資料展示で入浴はできない)その左隣の建物が受付。貸切風呂は、し... もっと見る
shu6555さんが行ったレストラン
-
いや~、久々に美味しいお店を見つけました。マジで美味い刺身の盛り合わせイサキ、ノドグロの炙り、貝柱、アジなど特にノドグロの炙りは、トロットロで最高馬刺しも赤身と... もっと見る
-
近くの宿に素泊まりで泊まり、夕食をこちらで。口コミで人気店とあったので、1週間前に予約。席はカウンターで、つき出しは無し。とりあえず、一オシの骨付カルビ¥720... もっと見る
shu6555さんが行ったショッピング スポット
-
景色最高のコバルトブルービーチ。その目の前にあるしおかぜの里角島。無料の駐車場になっています。トイレ・飲食店もあり便利。お土産用の魚の珍味なんかも置いていました... もっと見る
-
今回は物産館は利用しませんでしたが、ここの前にある駐車場が水源に一番近い駐車場になります。水源まで約200mくらい。この駐車場以外にも5つほどあります。ポリタン... もっと見る
shu6555さんが利用した交通機関・関連施設

