二条・烏丸・河原町旅行記(ブログ) 一覧に戻る
町家を改築したレストランやショップなどは<br />過去にも訪れたことがありましたが、<br />いつかは本物の町家に……と思いを馳せていたところ、<br />つい先日ネットNEWSでみつけた「京町家ステイ」の謳い文句。<br /><br />これは行かねば!<br />早速予約して、100年前に建てられた憧れの京町家に<br />宿泊してきました!<br /><br />折しも花見の季節。<br />お花見もかねて、京都へ馳せ参じたのでした。。。

憧れの京町家に泊まる

8いいね!

2007/03/30 - 2007/03/31

2835位(同エリア4397件中)

12

33

プルミエ フィグエ

プルミエ フィグエさん

町家を改築したレストランやショップなどは
過去にも訪れたことがありましたが、
いつかは本物の町家に……と思いを馳せていたところ、
つい先日ネットNEWSでみつけた「京町家ステイ」の謳い文句。

これは行かねば!
早速予約して、100年前に建てられた憧れの京町家に
宿泊してきました!

折しも花見の季節。
お花見もかねて、京都へ馳せ参じたのでした。。。

  • 春爛漫、<br />サクラ満開の東京を後に京都へ。<br /><br />到着したのは辺りも真っ暗な日暮れ時。<br /><br />暗がりの中に明かりが灯されていました。<br />土間には打ち水。<br />いきなり情緒たっぷりです。

    春爛漫、
    サクラ満開の東京を後に京都へ。

    到着したのは辺りも真っ暗な日暮れ時。

    暗がりの中に明かりが灯されていました。
    土間には打ち水。
    いきなり情緒たっぷりです。

  • 玄関のこあがりは3帖。<br /><br />昔の人はここでお客様の応対をしたのですね。<br />ちょこっとお茶を出したり、<br />早く帰ってほしい人には「ぶぶ漬けでも」なんて<br />いじわる言ってみたり?<br /><br />お座布団をしまっておくのに<br />ちょうどいい押し入れも完備。<br />うん、よく考えられてる。

    玄関のこあがりは3帖。

    昔の人はここでお客様の応対をしたのですね。
    ちょこっとお茶を出したり、
    早く帰ってほしい人には「ぶぶ漬けでも」なんて
    いじわる言ってみたり?

    お座布団をしまっておくのに
    ちょうどいい押し入れも完備。
    うん、よく考えられてる。

  • こあがりには床の間もあります。<br /><br />ここに飾られていたのは<br />黒田泰蔵さんという方の白磁。

    こあがりには床の間もあります。

    ここに飾られていたのは
    黒田泰蔵さんという方の白磁。

  • 小振りながら凛とした佇まいが<br />美しいですね。<br />花なぞ活けなくても絵になります。<br /><br />この作家さんは京都の方ではなく、<br />海外での活動を経て、今は伊豆にいらっしゃるとか。

    小振りながら凛とした佇まいが
    美しいですね。
    花なぞ活けなくても絵になります。

    この作家さんは京都の方ではなく、
    海外での活動を経て、今は伊豆にいらっしゃるとか。

  • ふすまの向こうには<br />6帖の居間。<br /><br />モダンなレザーの椅子(たぶんマリオ・ベリーニ)と<br />ガラステーブルが置かれていましたが、<br />見事に調和しています。<br />センスいいですね。<br /><br />天井の照明はもちろんリノベーション済み。<br />風格を損なわずにモダンさを取り入れた<br />スポットライトがナイスチョイスです。<br /><br />行灯やろうそくでは<br />危ないもんね。

    ふすまの向こうには
    6帖の居間。

    モダンなレザーの椅子(たぶんマリオ・ベリーニ)と
    ガラステーブルが置かれていましたが、
    見事に調和しています。
    センスいいですね。

    天井の照明はもちろんリノベーション済み。
    風格を損なわずにモダンさを取り入れた
    スポットライトがナイスチョイスです。

    行灯やろうそくでは
    危ないもんね。

  • 居間に続く6帖の寝室。<br />その向こうには縁側、庭と続きます。<br /><br />チェックイン時には<br />ふっかふかのお布団が敷かれていました。<br /><br />この京町家は旅館ではなく、一棟貸しの賃貸。<br />宿泊日数分だけ賃貸契約を結び、滞在するスタイルです。<br /><br />チェックイン時にスタッフの方から利用説明を受け、<br />鍵を預かった後は、いっさい人の出入りはありません。<br />なので、チェックイン時にお布団を用意しておいて<br />くれるのですね。

    居間に続く6帖の寝室。
    その向こうには縁側、庭と続きます。

    チェックイン時には
    ふっかふかのお布団が敷かれていました。

    この京町家は旅館ではなく、一棟貸しの賃貸。
    宿泊日数分だけ賃貸契約を結び、滞在するスタイルです。

    チェックイン時にスタッフの方から利用説明を受け、
    鍵を預かった後は、いっさい人の出入りはありません。
    なので、チェックイン時にお布団を用意しておいて
    くれるのですね。

  • 敷地の一番奥に庭がある、<br />町家独特の設計。<br /><br />夏は暑い京都。<br />住まいは夏を旨とするべし。<br />こうやって涼風をとりこんだのでしょう。

    敷地の一番奥に庭がある、
    町家独特の設計。

    夏は暑い京都。
    住まいは夏を旨とするべし。
    こうやって涼風をとりこんだのでしょう。

  • 小さいながらも<br />表情を変えながら<br />その日の天気、時を教えてくれます。<br /><br />季節によっても雰囲気は違うでしょうね。

    小さいながらも
    表情を変えながら
    その日の天気、時を教えてくれます。

    季節によっても雰囲気は違うでしょうね。

  • 洗面所。<br /><br />100年前の建物なんで、井戸水しか出ません……<br /><br />なんてことはもちろんなく、<br />快適仕様にリノベ済みです。<br /><br />歯ブラシやパジャマは持参しなくてはなりませんが、<br />ドライヤーと人数分のタオルは完備。

    洗面所。

    100年前の建物なんで、井戸水しか出ません……

    なんてことはもちろんなく、
    快適仕様にリノベ済みです。

    歯ブラシやパジャマは持参しなくてはなりませんが、
    ドライヤーと人数分のタオルは完備。

  • キレイにしつらえられたお風呂は<br />なんと檜風呂。<br /><br />湯船にお湯を満たすと<br />檜の香りが広がります。<br /><br />シャワーも完備。<br />湯船の向こうに小窓もあります。

    キレイにしつらえられたお風呂は
    なんと檜風呂。

    湯船にお湯を満たすと
    檜の香りが広がります。

    シャワーも完備。
    湯船の向こうに小窓もあります。

  • その小窓の先には<br />可愛らしい坪庭が。

    その小窓の先には
    可愛らしい坪庭が。

  • 古い邸宅で最も心配なのがトイレ。<br /><br />でもここは安心。<br />最新設備で快適です。<br />ここにも小窓があり、<br />開けると、ここからも坪庭が見えます。

    古い邸宅で最も心配なのがトイレ。

    でもここは安心。
    最新設備で快適です。
    ここにも小窓があり、
    開けると、ここからも坪庭が見えます。

  • トイレから見た坪庭。<br /><br />ライトアップされた石の佇まいが幽玄。<br /><br />……って、トイレから覗いて<br />いうことじゃないですけどね(笑)。

    トイレから見た坪庭。

    ライトアップされた石の佇まいが幽玄。

    ……って、トイレから覗いて
    いうことじゃないですけどね(笑)。

  • 玄関の土間は和室の脇づたいに奥まで続き、<br />2Fまで吹き抜けになっています。<br /><br />家の中にこういう「抜け」があると<br />開放感が出て広く感じられますね。

    玄関の土間は和室の脇づたいに奥まで続き、
    2Fまで吹き抜けになっています。

    家の中にこういう「抜け」があると
    開放感が出て広く感じられますね。

  • 土間の扉の向こうは、台所。<br /><br />町家では火気厳禁のため(もちろん禁煙)<br />自炊禁止。ガスはありません。<br />でも水道、ポット、コーヒーメーカー<br />食器、グラス類は用意され、<br />滞在中、自由に使うことができます。<br /><br />ここも使い勝手がいいようにリノベ済み。<br /><br />冷蔵庫もあり、<br />食べ物や飲み物の持ち込みは自由です。

    土間の扉の向こうは、台所。

    町家では火気厳禁のため(もちろん禁煙)
    自炊禁止。ガスはありません。
    でも水道、ポット、コーヒーメーカー
    食器、グラス類は用意され、
    滞在中、自由に使うことができます。

    ここも使い勝手がいいようにリノベ済み。

    冷蔵庫もあり、
    食べ物や飲み物の持ち込みは自由です。

  • キッチンに用意された<br />コーヒー豆、お茶のティーパックなどは<br />チャージフリー。

    キッチンに用意された
    コーヒー豆、お茶のティーパックなどは
    チャージフリー。

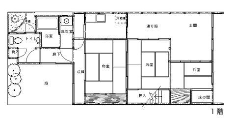
  • 1Fの間取り図。<br /><br />意外と広いです。<br />料金は決して安くはないですが、<br />ホテルのスイートや<br />旅館の特別室以上の広さを<br />独り占めできるのが魅力。<br /><br />門限もないしね!<br /><br />(町家ステイを運営する「庵」のHPから引用)

    1Fの間取り図。

    意外と広いです。
    料金は決して安くはないですが、
    ホテルのスイートや
    旅館の特別室以上の広さを
    独り占めできるのが魅力。

    門限もないしね!

    (町家ステイを運営する「庵」のHPから引用)

  • 居間の一面を覆う木戸。

    居間の一面を覆う木戸。

  • 右側を開けると物入れ。<br />中央を開けるとクローゼット。<br />左側を開けると階段でした。<br /><br />美しく、かつ合理的。<br />機能美って奴ですね。

    右側を開けると物入れ。
    中央を開けるとクローゼット。
    左側を開けると階段でした。

    美しく、かつ合理的。
    機能美って奴ですね。

  • でも押し入れ一間分の長さに<br />2階まで届く階段をつくっているため、<br />かなりの急勾配。<br /><br />足元を良く見て降りないと転げ落ちそう。<br />その昔、お年寄りはどうしていたんでしょう?<br /><br />お茶セットを持って上り下りなんてしたら、<br />ドリフみたいなことになりそうです(笑)。<br />昔のお母さんは大変だったんだなぁ。

    でも押し入れ一間分の長さに
    2階まで届く階段をつくっているため、
    かなりの急勾配。

    足元を良く見て降りないと転げ落ちそう。
    その昔、お年寄りはどうしていたんでしょう?

    お茶セットを持って上り下りなんてしたら、
    ドリフみたいなことになりそうです(笑)。
    昔のお母さんは大変だったんだなぁ。

  • 2Fに上がると、これまた天井の高い<br />解放的なリビングが現れた。<br /><br />でもここはだいぶリノベーションされているようで……。<br />天井をはずして天高を上げ、<br />部屋の間仕切りもはずしていました。<br /><br />壁に立てかけてある巨大な扉は<br />オーナーさんが中国で見つけた物だとか。<br />美しい透かし彫りがなされています。<br />足元には狛犬?シーサー?らしき置物が2体。<br /><br />本来の町家には絶対にない物でしょうけど、<br />それなりに馴染んで、<br />ZEN、和モダンといった雰囲気に。<br />センス力ですね。

    2Fに上がると、これまた天井の高い
    解放的なリビングが現れた。

    でもここはだいぶリノベーションされているようで……。
    天井をはずして天高を上げ、
    部屋の間仕切りもはずしていました。

    壁に立てかけてある巨大な扉は
    オーナーさんが中国で見つけた物だとか。
    美しい透かし彫りがなされています。
    足元には狛犬?シーサー?らしき置物が2体。

    本来の町家には絶対にない物でしょうけど、
    それなりに馴染んで、
    ZEN、和モダンといった雰囲気に。
    センス力ですね。

  • 2Fのリビング。<br /><br />オリエンタルテイストにリノベされたこの部屋の床は<br />畳ではなく麻絨毯。<br /><br />スリット状の窓は「虫籠窓」というそうです。<br />趣がありますね。

    2Fのリビング。

    オリエンタルテイストにリノベされたこの部屋の床は
    畳ではなく麻絨毯。

    スリット状の窓は「虫籠窓」というそうです。
    趣がありますね。

  • 昼間はこんな風に<br />外の光を取り込みます。<br /><br />ホント、虫籠の中にいるみたい。

    昼間はこんな風に
    外の光を取り込みます。

    ホント、虫籠の中にいるみたい。

  • このソファ、<br />なかなか居心地がよく、<br />私たちだけの町家サロン&バーと化したのでした。<br /><br />おのおの忙しくてなかなか会えずにいた<br />親友達が京都で集合し、<br />明け方までワイン片手に語り明かしました!<br />30オンナが集まれば、話題はずばり<br />「仕事と結婚」です(笑)。

    このソファ、
    なかなか居心地がよく、
    私たちだけの町家サロン&バーと化したのでした。

    おのおの忙しくてなかなか会えずにいた
    親友達が京都で集合し、
    明け方までワイン片手に語り明かしました!
    30オンナが集まれば、話題はずばり
    「仕事と結婚」です(笑)。

  • つまみはこれ!<br /><br />夕食を頂いた<br />祇園の「おかだ」さんで包んでもらった<br />細巻き(彩りに感激!)と<br />京都コンシェルジュ役をかって出てくれた<br />京都在住の友人が頼んでおいてくれた<br />「梅の井」のうな重。<br />美味です。

    つまみはこれ!

    夕食を頂いた
    祇園の「おかだ」さんで包んでもらった
    細巻き(彩りに感激!)と
    京都コンシェルジュ役をかって出てくれた
    京都在住の友人が頼んでおいてくれた
    「梅の井」のうな重。
    美味です。

  • 隣の寝室にもお布団の準備が。<br /><br />ほろ酔い気分のまま<br />お布団に飛び込めるところが最高!<br /><br />ガールズトーク(ミソジーズトーク!?)が延々続いたので、<br />お布団に潜り込んだのは空が白み始めてからでしたけど……。<br /><br />世のダンナ樣方よ、<br />時に妻はこんな息抜きがしたいのじゃ(笑)。<br />「ゆっくりしておいで」と私を送り出した我が夫、<br />理解がありますね! 感謝!!(笑)

    隣の寝室にもお布団の準備が。

    ほろ酔い気分のまま
    お布団に飛び込めるところが最高!

    ガールズトーク(ミソジーズトーク!?)が延々続いたので、
    お布団に潜り込んだのは空が白み始めてからでしたけど……。

    世のダンナ樣方よ、
    時に妻はこんな息抜きがしたいのじゃ(笑)。
    「ゆっくりしておいで」と私を送り出した我が夫、
    理解がありますね! 感謝!!(笑)

  • 2Fの寝室にも床の間。

    2Fの寝室にも床の間。

  • 2階からもお庭が見下ろせます。<br /><br />昔の家主は、ここから<br />外の景色を眺めつつ、<br />お茶を飲みながら<br />ほっこりしたのかな?

    2階からもお庭が見下ろせます。

    昔の家主は、ここから
    外の景色を眺めつつ、
    お茶を飲みながら
    ほっこりしたのかな?

  • 短い間だったけれど、<br />伝統的な京町家を堪能できて大満足。<br /><br />この京町家ステイ、<br />私たちが泊まった西六角町の他にも<br />数軒あり、<br />人数や趣旨に合わせて選ぶことができます。

    短い間だったけれど、
    伝統的な京町家を堪能できて大満足。

    この京町家ステイ、
    私たちが泊まった西六角町の他にも
    数軒あり、
    人数や趣旨に合わせて選ぶことができます。

  • 町家を後にした私たちは、<br />おなじみイノダコーヒーで<br />遅い朝食をとり、<br />老舗「山田松香木店」へ。<br /><br />奥の別室でお香席を堪能。<br /><br />ん〜、なんとも優雅な時間です。

    町家を後にした私たちは、
    おなじみイノダコーヒーで
    遅い朝食をとり、
    老舗「山田松香木店」へ。

    奥の別室でお香席を堪能。

    ん〜、なんとも優雅な時間です。

  • 続いて向かった先は東山。<br /><br />円山公園経由でお気に入りの高台寺へ。<br /><br />枝垂れ桜が満開です。

    続いて向かった先は東山。

    円山公園経由でお気に入りの高台寺へ。

    枝垂れ桜が満開です。

  • いやはや見事!<br /><br />この後、友人おすすめのお店で<br />京料理を堪能し、最終の新幹線で東京へ。<br />ほろよい気分のまま乗り込んだグリーン車。<br />ゆったりシートで爆睡です。<br /><br />1泊だけの小旅行ですが、<br />見てよし、泊まってよし、食べてよし、と<br />大充実の京都旅。<br /><br />時間を見つけて、また<br />ふらっと訪れたいな。

    いやはや見事!

    この後、友人おすすめのお店で
    京料理を堪能し、最終の新幹線で東京へ。
    ほろよい気分のまま乗り込んだグリーン車。
    ゆったりシートで爆睡です。

    1泊だけの小旅行ですが、
    見てよし、泊まってよし、食べてよし、と
    大充実の京都旅。

    時間を見つけて、また
    ふらっと訪れたいな。

  • 最後に<br />お庭から2Fのお部屋を眺めた図と、<br />この京都町家ステイの連絡先を。。。<br /><br />運営「庵」<br />http://www.kyoto-machiya.com/index.html<br />JTB<br />http://www.jtb.co.jp/machiya/#machiya

    最後に
    お庭から2Fのお部屋を眺めた図と、
    この京都町家ステイの連絡先を。。。

    運営「庵」
    http://www.kyoto-machiya.com/index.html
    JTB
    http://www.jtb.co.jp/machiya/#machiya

この旅行記のタグ

8いいね!

利用規約に違反している投稿は、報告する事ができます。 問題のある投稿を連絡する

この旅行記へのコメント (12)

開く

閉じる

  • たらよろさん 2007/06/05 22:29:05
    はじめまして♪
    こんばんわ。
    私は京都にず〜〜っと住んでいるんですが、
    恥ずかしながら、こんなに素敵な空間を知りませんでした。
    教えてくださってありがとうございます。

    我が家からは、ちょっぴりお散歩しながら泊まりに行けそうなところなんで
    お散歩→お泊りしてみようかしら(笑)

    では、また遊びに来させていただきます〜〜
    今後とも宜しくお願いします。

    プルミエ フィグエ

    プルミエ フィグエさん からの返信 2007/06/06 10:13:53
    RE: はじめまして♪
    はじめまして。
    ご訪問ありがとうございます。

    京都に住んでいらっしゃるなんて、羨ましい!

    ココで紹介した「庵」の京町家、
    実は3年くらい前から賃貸サービスをやっているそうなんですが、
    文中に出てくる京都コンシェルジュ(京都在中の友人)も
    知らなかったと言っていました。
    意外と地元の方には知られていないのかもしれませんね。

    でも、宿泊者がない日は見学にも応じてくれるそうです。
    ぜひお散歩がてら見学して、他の町家もレポートしてくださいませm(__)m

    ではまた!
  • RiEさん 2007/04/27 12:46:24
    泊まってみたい〜(*^_^*)
    初めまして RiEと申します♪

    京都にこんな素敵な宿泊先があるなんて知りませんでした。
    町屋に泊まれることにワクワクして、観光する気が起きないかも(笑)。
    途中にスタッフが来ない事も安心して寛げる要素ですね(^^ゞ
    憧れます★★★

    プルミエ フィグエ

    プルミエ フィグエさん からの返信 2007/04/27 14:29:53
    RE: 泊まってみたい〜(*^_^*)
    初めまして。
    コメントいただきありがとうございます。

    京町家、とっても良かったですよ。
    昔の暮らしを垣間みる気分で、隅々まで探検しちゃいました。

    機会があれば、ぜひ行ってみてくださいね。

    私もRieさんのページ、お邪魔させていただきますね。
  • Noririnさん 2007/04/09 23:46:19
    細巻き美味しそう!!
    プルミエ フィグエさん こんばんは!

    家族や友人達と旅行するには京町家がお勧めですね♪
    情緒があってすんごく良い感じです。

    京都旅行を計画していましたが、純日本風も捨てがたくなってきました。
    (でも高い休日しかお休みが取れないので、町家散策で終わってしまいそうですが・・)

    また小太郎君に逢いに来ます(^0^)/~~
    Noririn

    プルミエ フィグエ

    プルミエ フィグエさん からの返信 2007/04/10 14:13:31
    RE:細巻きもうな重も旨かったっす〜
    こんにちは!

    小太郎をダンナさんに任せて、京都行ってきました〜。

    京町家すっごくいいですよ。
    2Fはオリエンタルテイストにリノベーションされてましたが、
    センス良く、居心地抜群でした!
    ご飯屋さんがいっぱいあるから、お食事のでないお宿でも
    十分だし。
    ホテルよりも断然いい!と思いました。

    でも確かに値段的なことがあるので、
    狙い目は閑散期ですね♪

    またNoririnさんのページもお邪魔しまっす!

    プルミエ

  • 96さん 2007/04/04 23:35:02
    これから京都に・・・って
    こんなところへ行かれてんですね!
    プルミエさん、こんばんは。

    いひゃ〜いいっす!かなり♪

    >世のダンナ樣方よ、
    >時に妻はこんな息抜きがしたいのじゃ(笑)。
    >「ゆっくりしておいで」と私を送り出した我が夫、
    >理解がありますね! 感謝!!

    そうだったんですか。んーなるほどぉ。。。。

    ところで、インテリア関係のお仕事なんかされてるんですか?
    (なんとなく・・・そんな)

    まだ、実証実験中なんでしょうか?・・・

    けっこうなお値段するんですね!考えようによっては安いのかな。
    モニター参加だったんじゃないっすよね?

    プルミエ フィグエ

    プルミエ フィグエさん からの返信 2007/04/05 04:30:08
    RE: これから京都に・・・って
    真夜中にこんばんは。
    小太郎に起こされたプルミエです(笑)。寒い。

    京都、見てくださってありがとうございます!
    ここね、デラホコミュでジェロニモさんが紹介してた
    トラベルビジョンで見つけたの。(感謝です!)

    >インテリア関係のお仕事なんかされてるんですか?
    いえいえ、ずぶの素人っす(笑)。

    >まだ、実証実験中なんでしょうか?・・・
    町家ステイは3年前から「庵」独自でやっていたらしいのですが、
    ようやっと総務省の承認がとれて、
    旅行会社と提携できたのがつい最近のようです。

    >けっこうなお値段するんですね!考えようによっては安いのかな。
    大型の町家に2人で泊まると、素泊まりにはあり得ない金額ですね。
    でも人数が集まれば……。
    広いし、歴史あるものだし、立地も悪くないし。

    >モニター参加だったんじゃないっすよね?
    モニター利用です!
    4人で7万円のところを1人頭5千円のモニター割引で
    5万円で借りました〜♪
    モニター期間が3月末までだったから、いそいそと空きを調べ、
    友達誘って泊まりに行ってきた、というわけです。

    次回も町家を利用したい!ってほど気に入りました。
    割引期間は終わっちゃったけど、
    平日や閑散期なら少し安いし。

    そうそう、この西六角町の町家は、
    隣に「瓢樹」っていう有名な懐石屋さんがあるんですよ。
    あの「瓢亭」からのれん分けしたお店とか。

    料亭とセットで奥様にプレゼントしてあげたら
    絶対喜ばれますよ〜♪

    ではまた!
  • すずかさん 2007/04/04 12:32:52
    ちょっと〜〜〜っこれかなり好みです!
    プルミエさん、こんちは〜〜〜。

    まずはメインから、プロフの写真をクリックして小太郎君を大きくして・・
    やっぱかわいい♪←なんかやばい人みたい(^^;
    で、見せていただきました!京都!京町家!!

    おっと、おっと。
    こんなのあるんですね。知らなかった(−−;
    さすが、プルミエさん!

    まじで、ここ好みっす。
    急な階段でドリフやりたです!
    すごい味のある宿泊ではないですか〜〜。

    私事ですが、今秋に京都のHyattとってるんです。ヒノキ風ああ呂にひかれて。
    でもまじめにこっちに変えちゃおうかと思っています。
    やっぱり京都にきたら、こういう宿が味があっていいですもんね。
    しかも、貸切♪=静か!
    うん、これはますますナイスです。
    なんせ、私大箱ホテルが好きではないもんで(^。^;
    ここに小太郎君を連れていけたら最高でしたよね。きっと。

    桜は残念でしたが、こんな素敵なお宿発見できていいですね♪

    では、またお邪魔させてくださいね(^-^/~~

    すずか

    プルミエ フィグエ

    プルミエ フィグエさん からの返信 2007/04/04 18:22:34
    RE: ちょっと〜〜〜っこれかなり好みです!
    すずかさん、毎度です!

    ここいいっしょ!

    京都行ったら見たいところいっぱいあるし、
    おいしいご飯屋さんもいっぱいあるし、
    食事の時間が決まっている旅館なんかよりも
    断然気楽で快適に過ごせました〜!

    最初っから貸し切りで、人の出入りがないから(これがまたいい)
    ホスピタリティで云々することもないし、
    門限もないし。

    デラホコミュでジェロニモさんがおススメしてた
    ホテル情報サイトのリリースで見つけたんですけど、
    まだあんまり知られてないようなので、
    旅行記の最後にリンク貼っておきました〜!

    いずれ予約とれなくなっちゃうかもしれないし、
    値上がりしちゃうかもしれないから
    今のうちに泊まってきてくださ〜〜い!
    もう太鼓判です!!

    ではでは。。プルミエ
  • dana7さん 2007/04/03 23:12:28
    こんなプランあるんですねー
    プルミエ フィグエさん
    こんばんは!dana7です♪
    京町家に泊まるプランがあるんですね〜
    昨年も一昨年も秋の京都に行きましたが知りませんでした。

    打ち水とかしてあって風情があります。
    更にリビングのインテリアもシックで素敵!
    お布団もフカフカで気持ち良さそうです。
    お宿の楽しみがまた増えますね。
    また京都に行きたくなりました〜

    ではでは(^O^)/

    プルミエ フィグエ

    プルミエ フィグエさん からの返信 2007/04/04 09:07:42
    RE: こんなプランあるんですねー
    dana7さん、おはようございます。

    そうなんです。
    私もつい最近知ったばかりなんですが、
    思い立ったが吉日!とばかりにすぐさま
    行ってきました。

    ちょっとばたばたしていて、少しずつのアップになりますが
    完成した頃に、また遊びにきてくださいませ〜!

プルミエ フィグエさんのトラベラーページ

コメントを投稿する前に

十分に確認の上、ご投稿ください。 コメントの内容は攻撃的ではなく、相手の気持ちに寄り添ったものになっていますか?

サイト共通ガイドライン(利用上のお願い)

報道機関・マスメディアの方へ 画像提供などに関するお問い合わせは、専用のお問い合わせフォームからお願いいたします。

旅の計画・記録

マイルに交換できるフォートラベルポイントが貯まる
フォートラベルポイントって?

フォートラベル公式LINE@

おすすめの旅行記や旬な旅行情報、お得なキャンペーン情報をお届けします!
QRコードが読み取れない場合はID「@4travel」で検索してください。

\その他の公式SNSはこちら/

PAGE TOP