PR
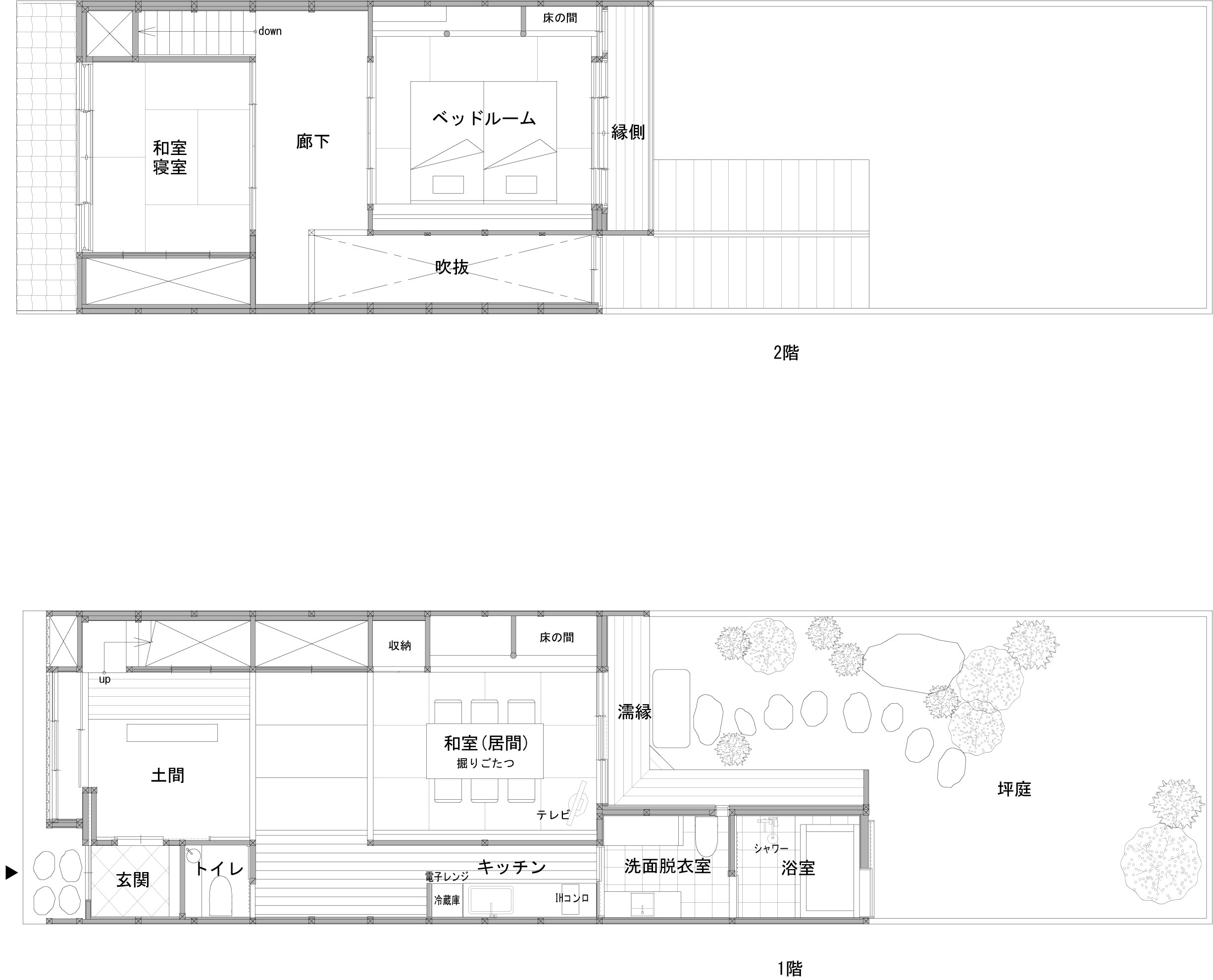
藏や 千本三条の写真(0)
予約サイトオフィシャル写真
トラベラー投稿写真・オーナー提供写真
藏や 千本三条に宿泊されたことがある方、
最初のクチコミと写真を投稿してみませんか?
藏や 千本三条をもっと知りたい方があなたの投稿を待っています。
京都のホテル 最新情報
3.27

提灯を模した照明、茶器や備品をすっきり収めた「道具箱」兼用テーブル。簡素な道具に美しさを見出す日本の価値観、「用の美」を追求しました。庭の眺めに時の移ろいを感じ... もっと見る
3.21
お得情報ポイント会員プログラムのご案内
ポイント会員プログラムのご案内入会金・年会費無料でご入会いただける『Hiyori... もっと見る
※ 掲載している情報の正確性については万全を期していますが、その内容を保証するものではありません。最新の情報は宿泊施設にご確認ください。
※ 掲載している宿泊施設や宿泊プラン等の情報は、各宿泊予約サイトや宿泊施設から提供を受けた情報または宿泊施設のホームページ等にて公開されている特定時点の情報をもとに作成したものです。
※ 温泉の有無、泉質等の詳細情報は、宿泊施設のホームページ又は各宿泊予約サイトから提供される情報をもとに作成したものです。
※ 宿泊施設のご予約は各宿泊予約サイトから行えますが、ご予約はお客様と宿泊予約サイトとの直接契約となるため、株式会社カカクコムは契約の不履行や損害に関して一切責任を負いかねます。
※ 宿泊施設の価格や空室状況は常に変動しています。ご予約の際は各宿泊予約サイトや宿泊施設のホームページで最新の情報をご確認ください。
※ 各種ポイント付与やクーポン等の特典は事業者より提供されます。ご予約の際は事業者による注意事項や規約等をよくご確認の上お手続きください。

